Moradas da campina foto da obra
Logo moradas da campina

Campina Grande do Sul – PR

Logo moradas da campina

Campina Grande do Sul – Paraná

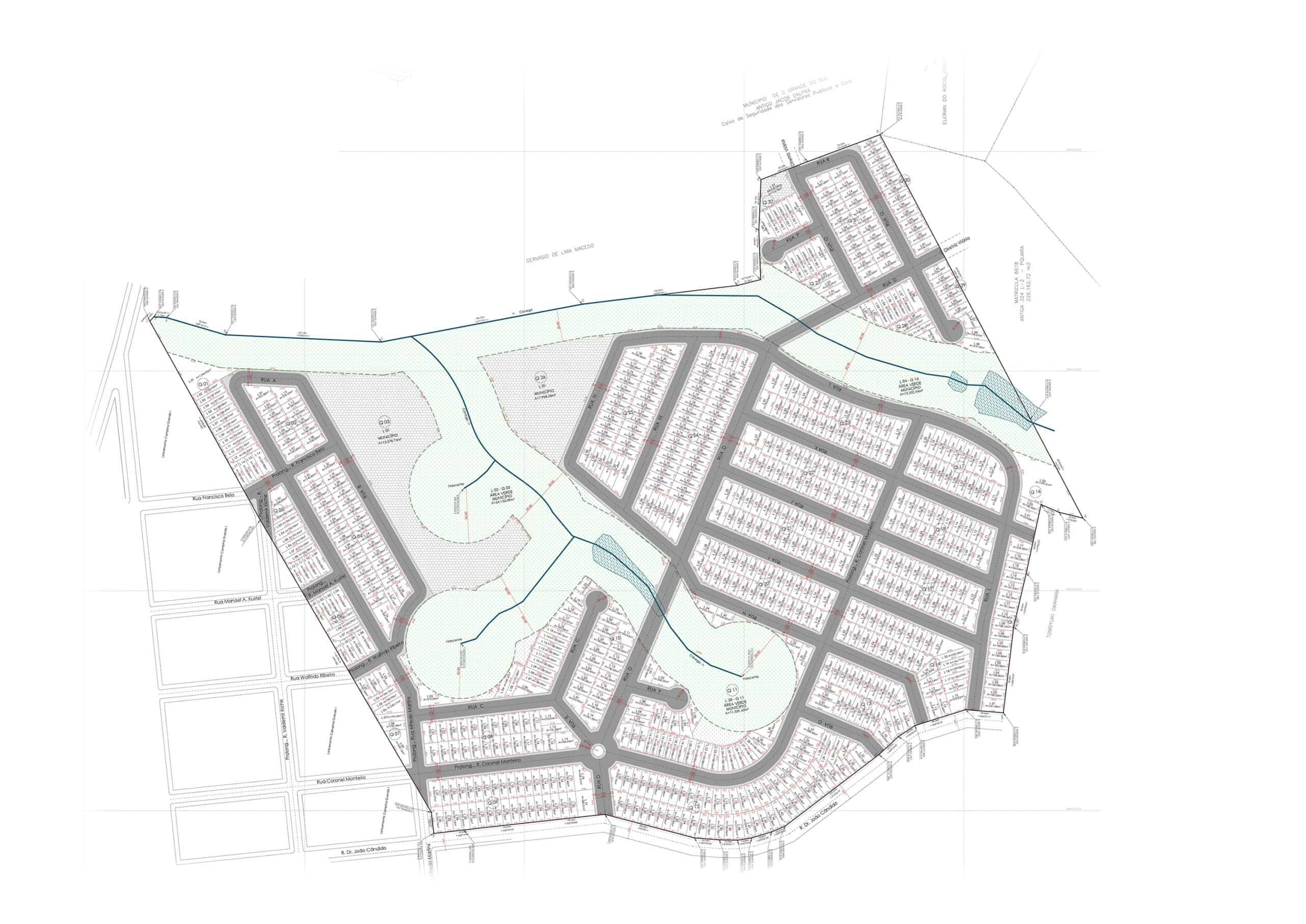
Moradas da Campina, um novo começo em um dos municípios mais promissores da Região Metropolitana de Curitiba. Loteamento com obras já entregues e pronto para construir.

Imagem area Moradas da campina

DIFERENCIAIS:

A partir de
0
0 Lotes
Parcelamento em até
0 x
Lotes
0
A partir de
0
Parcelamento em até
0 x

Obra finalizada!

Terraplanagem
100%
Drenagem
100%
Sistema de abastecimento de água
100%
Esgotamento sanitário
100%
Pavimentação
100%
Iluminação
100%

Localização estratégica

Endereço:

R. João Cândido, 800 – Jardim da Colina
Campina Grande do Sul – PR, 83430-000

Cadastre-se e receba mais informações